DESCRIPCIÓN DEL PROYECTO
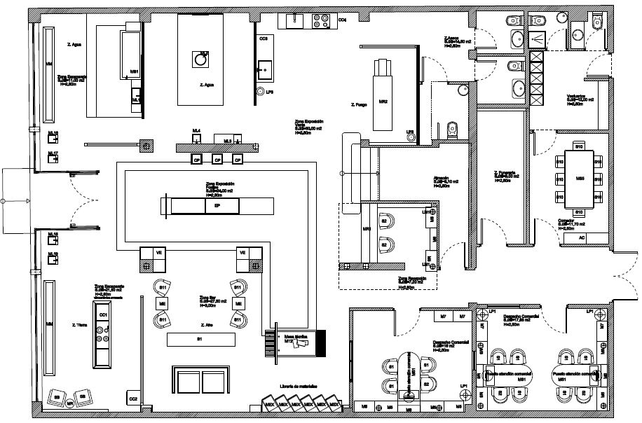
Bellapiedra es una marmoristería del más alto nivel ubicada en Plasencia. Contactan con nosotros ante la necesidad de crear un espacio de exposición en el que se rinca culto a la piedra y a los minerales. Desarrollamos el proyecto en un espacio de dos plantas, de 400m2 en total.
El espacio, dividido en dos plantas y en dos usos, se destina a exposición y atención comercial en planta de calle, y oficinas y zona técnica en planta primera.
Empleamos ingentes cantidades de piedra natural y artificial en muy diferentes acabados y despieces en planta baja. En la zona técnica introducimos la madera y el acero, enmarcando las piedras en librerías y mesas técnicas.
UBICACIÓN: Plasencia
FECHA: 2004-2008
*Diseño de Carlos Rubio / Daniel Sastre para Arquizano.
